一、概述
QJG-T型减速器是QJG-L型减速器的基础上派生的,主要用于起重机的运行机构,也可用于其它机械需要立式套装的传动中,用以代替ZSC(A)型减速器。
二、特点
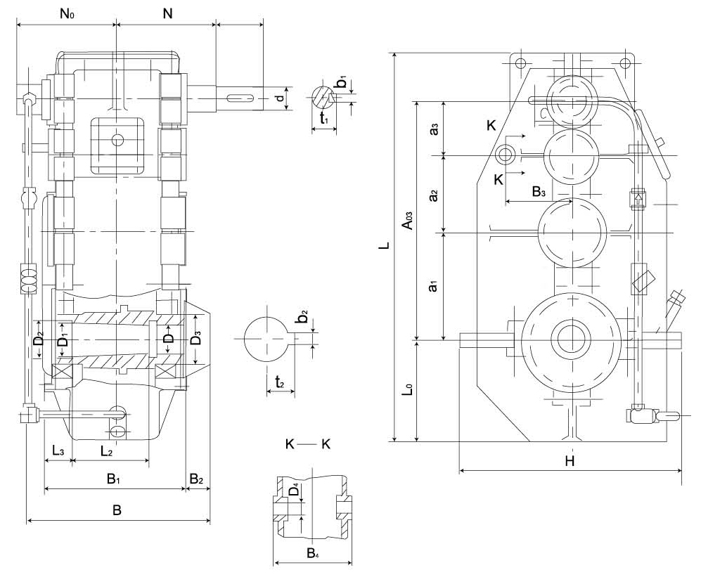
QJG-T型减速器的输出端为圆锥套,减速器就套在主机的被动轴上,将其端部固定,减速器的重也支承在该轴上。在箱体上部设有安装孔,通过销轴固定在支架上。
三、输出转矩和高速轴许用功率

四、型式
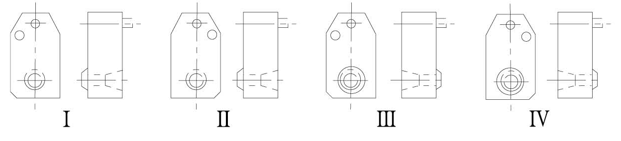
装配型式:QJG-T型减速器的裝配型式有四种,见图

轴端型式:高速轴采用圆柱形轴伸,平键联接,低速轴采用空心轴套,锥形轴孔,平键联接
五、外形及安装尺寸





